Manutenzione straordinaria facciate del Palazzo Spinelli di Tarsia

Vuoi avere maggiori dettagli sul progetto? Contattaci subito

Contattaci

Il servizio attiene la Progettazione definitiva ed esecutiva, la Direzione dei lavori e il Coordinamento della Sicurezza del Restauro e risanamento conservativo della facciata principale e la Progettazione definitiva ed esecutiva del Restauro e risanamento conservativo delle facciate interne alla corte del Palazzo Spinelli di Tarsia, sito a Napoli al Largo Tarsia n°2. I progetti di restauro sono inseriti in un più ampio piano di interventi dell’intero stabile che, realizzato gradualmente secondo una logica di priorità connesse alla conservazione ed alla fruizione, consente di giungere al restauro dell’intera fabbrica di esclusiva proprietà privata.

Palazzo Tarsia (attualmente vincolato ex leges 1089/1939 e 28/2004) fu realizzato, su commissione di Giuseppe Vespasiano Spinelli, tra il 1617 ed il 1619 e con il contributo di Orazio Gisolfo, allievo dell’architetto di Giacomo Conforto ed esperto di fortificazioni, nell’area denominata indistintamente “Patruscolo” e poi “Monte Olimpiano” che si trovava al confine orientale della Città di Napoli. Nel 1732 la fabbrica, oramai assorbita dallo sviluppo urbano, viene ampliata su progetto dell’architetto Domenico Antonio Vaccaro  ed acquista l’attuale configurazione. Come descritto da G. Doria (I palazzi di Napoli, Guida Editori, Napoli 1992) «Nella Napoli del pieno Settecento […] si costruiscono o ricostruiscono numerosi palazzi: alcuni sorprendono per la perfetta integrazione col tessuto ambientale […]. Vaccaro, ricostruendo fra il 1732 e 1739 il palazzo Spinelli di Tarsia a Pontecorvo, immagina uno scenario eccezionale, una nutrita serie di interventi volti a sfruttare al meglio il sito disponibile, in particolare il dolce pendio verso Toledo. Egli non si limita a “ritoccare” soltanto l’esterno del palazzo ma vi distende innanzi un immenso cortile, contornato da una specie di ferro di cavallo molto schiacciato, ad un sol piano, ospitante rimesse e scuderie, sul quale gira una terrazza che pone in comunicazione le due estremità dell’appartamento nobile per mezzo di due cavalcavia, lanciati sopra alla strada che costeggia la facciata. […] Questo complesso si apre ampiamente sulla città, la domina ma nel contempo si offre tutto ai suoi sguardi, in un succedersi articolato di costruzioni, di scale, di elementi naturali. […]. »

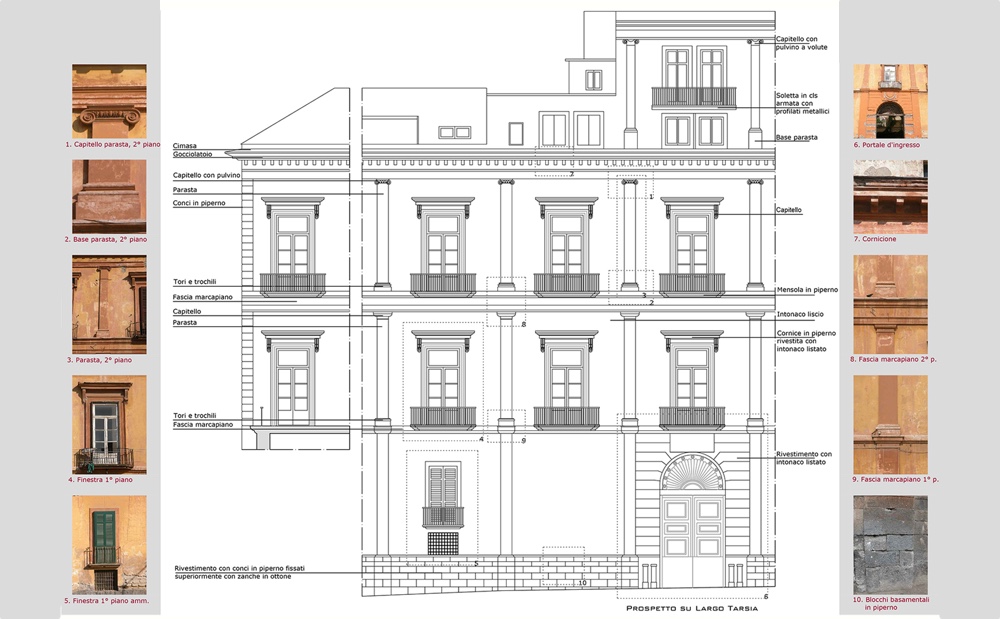
Palazzo Tarsia si sviluppa secondo una pianta a corte interna e si apre, attraverso il portone, sull’omonimo Largo su cui prospetta la facciata principale composta da quattro piano fuori terra e con estensione pari a circa 100 mt; la struttura portante è in muratura piena in tufo giallo napoletano; gli orizzontamenti sono di tipo voltato al piano terra mentre gli impalcati interni sono di tipo piano con travi in legno su singola orditura, il cui comportamento flessionale è irrigidito da travi rompitratto, disposte all’estradosso dei solai a cui sono connesse con eleganti staffature in ferro sagomato. La copertura è di tipo inclinato su due falde. Le fondazioni sono di tipo diretto e superficiale e seguono l’andamento ororafico caratterizzato da forti dislivelli altimetrici.

Al fine di poter definire una soluzione progettuale ed una esecuzione dei lavori coerente con la complessità dei valori dell’edificio è stato costituito un team di professionisti con diverse specializzazioni (Architetto – Ingegnere tecnologo e strutturista – Restauratore – Coordinatore della Sicurezza) coordinate sia nella fase decisionale sia esecutiva dal Progettista e Direttore dei Lavori, esperto in ambito di Recupero edilizio ed innovazione tecnologica. Il gruppo di professionisti è stato inoltre supportato da un laboratorio di analisi e prove sui materiali e da tecnici delle aziende fornitrici dei prodotti edili e meccanici.

Il progetto di restauro ha avuto origine dalla approfondita ricerca storica attraverso la quale sono stati desunti i significati intrinseci della prestigiosa architettura napoletana, attualmente trasformata dalle modifiche volumetriche e cromatiche e decontestualizzata dallo sviluppo urbano, fortemente degradato. L’intervento di restauro ha, quindi, voluto ripristinare il valore formale della facciata principale come emergenza architettonica dell’ambito cittadino, ripristinando gli equilibri paesaggistici e materico/cromatici, fortemente penalizzati dai diversi interventi sovrapposti nel tempo. Contestualmente si è inteso attenuare l’impatto della abnorme deformazione volumetrica, determinata dalla sopraelevazione di una intera ala del fabbricato, seppur favorendone il riconoscimento.

Le scelte progettuali, approvate dal Mibact, ed in particolare relative ai materiali ed alle cromie è avvenuta a valle di un’approfondita analisi dell’iconografia storica, la predisposizione di saggi diretti sulle superfici e numerose prove di laboratorio. I risultati delle analisi hanno evidenziato che gli intonaci originari erano realizzati con calce e pozzolana, mentre i colori richiamavano, per le zone di fondo, il Giallo Tufo (ottenuta con la polvere di tufo nel corpo dell’intonaco) e, per gli elementi decorativi in aggetto, il Marrone molto chiaro (ottenuto con la polvere di terre locali nel corpo dell’intonaco), nelle zone interne si è invece ritrovata una diffusa presenza di Rosso Pompeiano.

L’intervento di restauro della facciata esterna è stato, quindi, realizzato mediante la riproposizione per le zone di fondo di un intonaco traspirante a base di calce, armato con una rete in fibra e pigmentato inerti naturali, e mediante l’applicazione di tinteggiature a base di calce per la finitura degli elementi decorativi. Gli interventi locali di consolidamento hanno previsto l’adozione della tecnica del scuci e cuci, effettuato con blocchi di tufo similari a quelli originari e provenienti dalle cave di Quarto, e il placcaggio con elementi metallici di limitate porzioni di cornicione parzialmente distaccate.

Analogamente a quanto eseguito per il prospetto principale, anche il progetto di restauro delle facciate interne, approvato dalla Soprintendenza per i Beni Architettonici di Napoli e Provincia, è stato preceduto da un’accurata fase di indagine e rilievo dello stato di conservazione dei materiali e delle cause del degrado finalizzata allo sviluppo delle scelte progettuali coerenti con l’assetto storicizzato del fabbricato. Di particolare interesse è risultato lo studio e la soluzione progettuale inerente la sostituzione dell’attuale impianto ascensore e l’istallazione di un ulteriore impianto, a servizio della scala secondaria, con una struttura in acciaio e vetro di tipo panoramico.

L’intervento di restauro della facciata di Palazzo Spinelli di Tarsia è stato finanziato e riconosciuto come esempio di “best practice” del Progetto Sirena (programma di recupero dei fabbricati privati del centro storico napoletano), pubblicato dal Comune di Napoli nel volume “Il Progetto Sirena” edito da CUEN srl, Napoli e presentato in convegni nazionali ed internazionali. Lo studio è confluito nella monografia di R. Castelluccio “Architetture a confronto: Palazzo Spinelli di Tarsia – Villa Carafa di Bevedere”, Ed. Luciano Editore.

Ti è piaciuto il progetto e vuoi saperne di più?

Compila il form e verrai ricontattato da un nostro operatore.

Il sottoscritto dichiara di aver preso visione dell'informativa sulla privacy fornita da Gamma Ingegneria ai sensi del Regolamento Ue 2016/679 (GDPR) e di dare il consenso al trattamento dei propri dati personali per i trattamenti necessari e l'erogazione dei servizi richiesti.
Acconsento al trattamento dei miei dati personali