Consolidamento strutturale dell’edificio postale sito in Piazzale Bonificatori

Vuoi avere maggiori dettagli sul progetto? Contattaci subito

Contattaci

Il servizio attiene alla progettazione e direzione di interventi locali di consolidamento strutturale dell’Edificio Postale sito in Piazzale Bonificatori in Latina.

L’edificio

L’edificio, vincolato ai sensi della Legge n.1089/1939 (ora D.Lgs. n. 42/2004) per il suo valore storico ed artistico, rappresenta nella forma e nei materiali, nei volumi geometrici e regolari, nei rivestimenti di marmi e laterizi che caratterizzano la bicromia dell’intera architettura, un esempio dell’espressione stilistica tipica dell’architettura fascista.

L’impianto originario del fabbricato fu realizzato nel 1932 su progetto dell’architetto A. Mazzoni che, dal 1924 al 1945, lavorò come ispettore stabile nell'ambito dell'amministrazione unificata delle Poste e Telegrafi e delle Ferrovie Statali. Il volume, con parallelepipedo centrale in linea con la scalinata di accesso dalla piazza, è visibile nella vista aerea di Littoria del 1931. Il progetto rappresentava la sperimentazione matura dell’architetto, di scuola piacentiniana, nel conciliare soluzioni strutturali di influenza razionalista con un dinamismo di taglio futurista.  

“Egli riuscì, attraverso l’impiego di morfologie fortemente simboliche, ancorate insieme alla lezione futurista e a quella novecentista, l’adozione di tecnologie facenti capo alle innovazioni più aggiornate e di materiali tradizionali come la pietra, il marmo e il mattone, la dimensione dichiaratamente urbana delle sistemazioni alla scala “cittadina”, a connotare un’idea di architettura capace di affermarsi e di sopravvivere al tempo e alle mode.” (tratto da: Angelo Mazzoni, l'architetto delle Poste e Telegrafi, a cura di Angela Picello)

Il corpo del 1932 si articolava su una pianta rettangolare con le due testate contrapposte scandite, da un lato, da due volumi più alti, di cui uno curvo che ospitava la scala di collegamento interna, dall'altro, da una sinuosa scala esterna. “I volumi liberamente accorpati di questo edificio, come appaiono nelle immagini d'epoca, trovano nelle dimensioni modeste, nell’omogeneità dei materiali (laterizio e travertino di Cisterna), la compatta unità di un oggetto architettonico” (tratto da: Architettura Moderna a Roma e nel Lazio, 1920-1945, di G. Strappa e G. Mercurio, 1996).

Il giorno dopo l'inaugurazione, sulla "Gazzetta del Popolo", Filippo Tommaso Marinetti scrisse che “tra i valori artistici ideati dall’Architetto Mazzoni in questo edificio noi ammiriamo specialmente le grandi alte grate semicilindriche di difesa conto le zanzare malariche. Si tratta di una di quelle bellezze sorprendenti originali che risultano da una trovata costruttiva con scopo funzionale. [...] Così Mazzoni, avendo il compito di difendere una casa dalle zanzare malariche, sostituisce alle solite, piccole grate malariche, dei forti motivi architettonici di rete metallica. Esempio questo di una utilità che diventa bellezza, trovata, lirismo. In altri termini, superamento futurista del semplice razionalismo.”

Nel 1934 Littoria venne promossa a capoluogo di provincia e anche l'edificio postale dovette assolvere nuove ed ulteriori mansioni e ampliare la zona ricevitoria. Dopo una prima proposta, respinta dal neo ministro Pupini, il progetto di ampliamento fu realizzato, sempre su progetto di Mazzoni, con la costruzione di un nuovo volume sulla destra del fronte principale in direzione nord ovest, ortogonale rispetto al precedente impianto. All’ampliamento del 1934 non seguirono altri interventi significativi sino al 1963 quando venne eseguita la demolizione quasi totale del corpo di fabbrica originario del 1932, ivi compresa la scala esterna, e l’aggiunta di un anonimo parallelepipedo con struttura portante in pannelli prefabbricati di calcestruzzo armato e finitura in graniglia. Le più recenti modifiche apportate all’impianto sono state realizzate nel 2010 nell’ambito di interventi di manutenzione straordinaria che hanno compreso la modifica di alcuni vani per il collegamento della sala principale con la zona destinata agli uffici. Tali modifiche hanno alterato gli elementi costruttivi, la distribuzione interna dei carichi e delle tensioni sull’organismo strutturale.

L’intervento

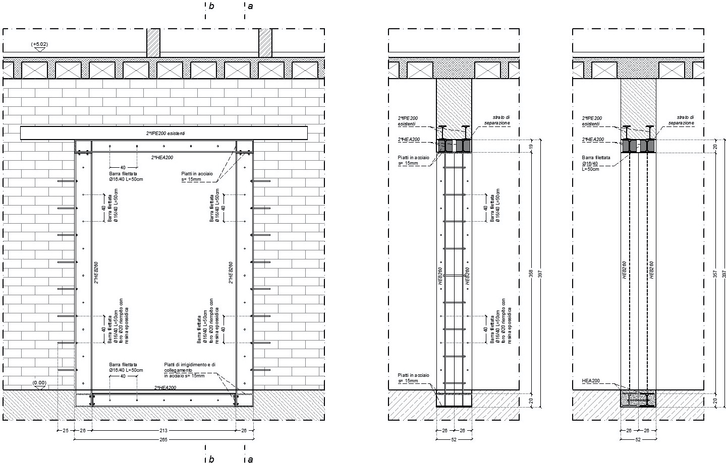
In corrispondenza di questa porzione dell’edificio, costruita con l’ampliamento del 1934, è stato concentrato l’intervento di consolidamento oggetto del servizio.

Al fine di raggiungere un buon livello di conoscenza dell’edificio e del suo stato di conservazione è stata eseguita, in via preliminare, un’accurata fase di analisi dei materiali, delle tecniche costruttive, dello stato tensionale e deformativo delle strutture portanti, sia mediante rilievi ed osservazioni non invasive sia mediante indagini strumentali dirette. Attraverso l'analisi dei quadri fessurativi, è stato possibile individuare le direzioni principali di sollecitazione dei paramenti murari e determinare l’origine dei cinematismi rilevati.

Il progetto, pertanto, è stato sviluppato prevedendo due tipologie di interventi: i primi, perlopiù a carattere puntuale, volti a ripristinare le caratteristiche degli elementi analizzati mediante la realizzazione di un telaio in acciaio, la sostituzione della muratura disomogenea con metodo “scuci e cuci” ed il consolidamento delle murature con realizzazione di intonaco armato; i secondi, di tipo diffuso, finalizzati alla sarcitura delle lesioni dei tramezzi, al risanamento delle capriate in acciaio ed al rifacimento delle finiture. Gli interventi realizzati sono compatibili con l'architettura e la materia del fabbricato, hanno caratteristiche di reversibilità e durabilità e non hanno compromesso l’originario comportamento statico del manufatto.

Il servizio ha compreso anche la direzione dei lavori, sviluppata da un team di professionisti che ha garantito una costante presenza in cantiere e la supervisione di tutte le fasi di realizzazione. Tale organizzazione ha consentito di gestire le esigenze del cantiere, risolvendo le interferenze legate alla fruizione degli uffici contestualmente all’esecuzione dei lavori, e di ottimizzare i tempi previsti per l’ultimazione e la riconsegna delle aree alla Committenza.

Ti è piaciuto il progetto e vuoi saperne di più?

Compila il form e verrai ricontattato da un nostro operatore.

Il sottoscritto dichiara di aver preso visione dell'informativa sulla privacy fornita da Gamma Ingegneria ai sensi del Regolamento Ue 2016/679 (GDPR) e di dare il consenso al trattamento dei propri dati personali per i trattamenti necessari e l'erogazione dei servizi richiesti.
Acconsento al trattamento dei miei dati personali